Property details
OMNIA RESIDENCES - Your Sanctuary of Serenity
Almeida Park, Bandra West, Mumbaiπ
Description
Welcome to OMNIA, your sanctuary of serenity in the most lively and vibrant part of Bandra. In the heart of the city lies this tranquil nook where silence is savoured in masterfully designed living spaces. Reconnect with solitude and reclaim the luxury of privacy.
With only 12 residences and one apartment per level, the entire floor is yours. Each time you walk in, your senses are embraced by organic elements, earthy textures, and natural harmony in design. The vast and sleek sundecks showcase the most sought-after views in Bandra - from the green tree-tops of Almeida Park to the glittering blues of the Arabian Sea.
π‘ Property Overview
-
Project Name
OMNIA RESIDENCES
-
Developer
Panchshil Realty
-
Location
Almeida Park, Bandra West, Mumbai
-
Property Type
Luxury Residential Apartments
-
Total Residences
Only 12 Residences
-
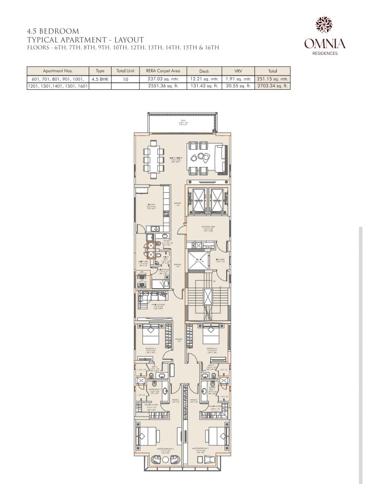
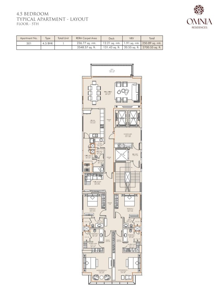
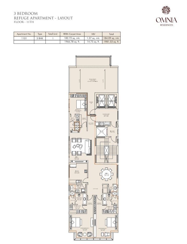
Configuration
3 BHK & 4.5 BHK Residences
-
RERA Carpet Area
3 BHK: ~182 sq.m. / ~1966 sq.ft.
4.5 BHK: ~237 sq.m. / ~2551 sq.ft. -
Land Type
Freehold Land
-
Completion Options
Bareshell & Warmshell
-
MahaRERA No.
PB1170002501331
Key Highlights
- Only 12 residences with one apartment per level
- Built on freehold land in one of Bandra West's most sought-after neighbourhoods
- Spacious decks providing serene views of Almeida Park
- Advanced multi-level security systems
- Panoramic views of Almeida Park and Arabian Sea
- Masterfully designed living spaces with organic elements and earthy textures
From Our Gallery
Amenities
π Prime Location Advantages
OMNIA is conveniently nestled in the busy centre of Bandra yet offers the solitude of a sanctuary. Enjoy swift connections to commercial hubs in South Mumbai and the suburbs for seamless everyday commutes.
Nearby Landmarks:
- β’ Taj Lands End
- β’ Bandra Fort
- β’ Bandra Bandstand
- β’ Mount Mary Church
- β’ Mehboob Studios
- β’ Gaiety Galaxy Theatre
Healthcare & Education:
- β’ Lilavati Hospital
- β’ Holy Family Hospital
- β’ Ojas Eye Hospital
- β’ Arya Vidya Mandir High School
- β’ St. Andrews College
- β’ IES Management College
Shopping & Dining:
- β’ Linking Road
- β’ Hill Road
- β’ Turner Road
- β’ Candies, Benne Dosa, Soul Fry
- β’ Veronica's, Chantilly Cafe
- β’ Hakkasan, Izumi
TYPICAL FLOOR PLAN




